Company logo

Please use Landscape mode

The Showroom presentation is optimized for landscape mode. To ensure the best viewing experience, please rotate your device to landscape orientation. The presentation will not function properly in portrait mode.

Masterplan
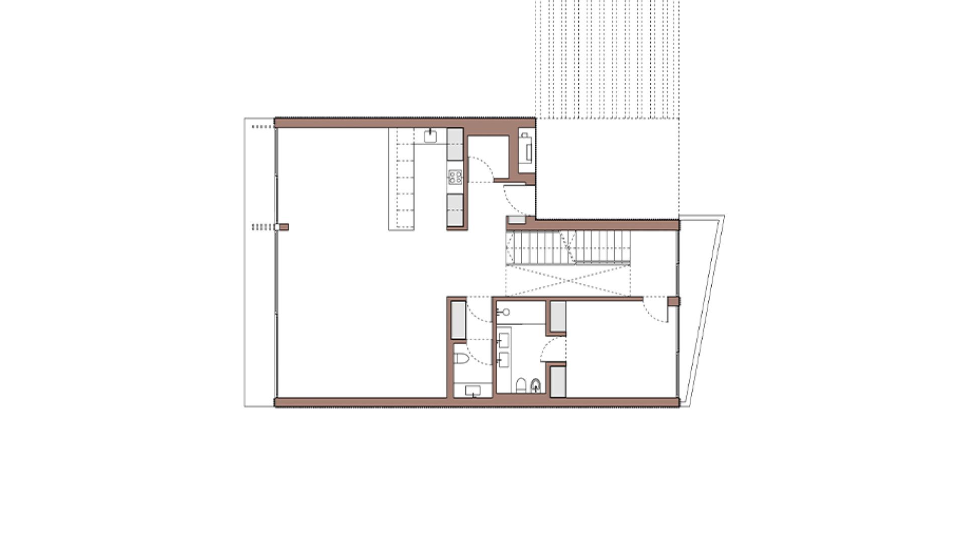
Floor Plans
Gallery
Location